Durante el 8.º semestre de la licenciatura tuve la oportunidad de colaborar con maestros cantereros un proyecto que buscaba utilizar materiales y procesos regionales para la elaboración de un producto. Diseñe una maceta que aprovechaba los laminados existentes utilizados para cubrir muros, ofreciendo una nueva opción a la demanda existente por los constructores inmobiliarios por soluciones económicas que permitan incluir espacios verdes en sus proyectos.
Investigación
La poca tipología existente de productos de cantera fue la razón por la que los maestros canteros estaban abiertos a trabajar con diseñadores que les pudieran auxiliar.
Laminados de cantera
El labrado de cantera es un proceso artesanal que no se presta a incluirlo dentro de una producción industrial.
Más del 50% de la extracción de cantera es utilizado para la elaboración de losetas, mas conocidas como «laminados», piezas de 2 cm de grosor por 40 x 40 cm de área o 40 x 60 cm que son utilizadas dentro de la industria de la construcción para pisos o recubrimiento de muros, por lo que este es el proceso más industrializado de todo el mercado de cantera.
Los laminados son populares debido a su costo económico en comparación a otros acabados pétreos, tiene una belleza natural que lo vuelve atractivo utilizalo como superficie.
Por esto, decidí utilizar los laminados de cantera, su presentación uniforme y costo económico le quita carga de trabajo al cantero ya que empieza con un material estandarizado en variedad de colores.


Valor al mercado de la construcción
Los «muros verdes» era una tendencia en San Luis Potosí durante el momento de la investigación, lo comprobé de primera mano al ya que trabajaba en una empresa que se dedica a la instalación de estos.

La demanda por tener vegetación en los espacios urbanos podía ser satisfecha por soluciones como las de m2o2, pero su precio elevado no permite a una gran parte de la población acceder a ella. El costo del mantenimiento y el sistema hidráulico eran factores que subían el costo de la solución.
¿Podrá existir una versión más económica de un «muro verde» que utilice la presentación más económica de la cantera?
Los laminados son utilizados como losetas en obras nuevas de vivienda como una manera de agregar belleza a una edificación. Si a estos laminados se les agregara una maceta, permitirá a los edificadores integrar a los muros que ya están realizando, la vegetación demandada por sus clientes.
Diseño
- La cantera se une con resina automotriz mezclada con polvo que se produce al cortar la cantera.
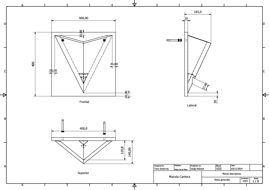
- Se utiliza 1 laminado de 40 x 40 cm para producir las paredes de la maceta.
- Se aplica un sellador por dentro para ampliar su tiempo de vida.
- Al fondo se rellena con cemento, se le da una pendiente y se hace un barreno para crear un drenaje.
- Se realiza un corte debajo de la salida del drenaje para crear un goterón.



Conclusión
- Al ajustarse a las medidas estandarizadas de la producción de laminados, se logró proponer un producto simple que los artesanos si pueden producir en serie
- el producto está dirigido al mercado más grande de la cantera, ofreciendo una opción nueva para una gran cantidad de clientes potenciales.
- Se creó una alternativa más económica a los muros verdes tradicionales al no incluir un sistema de riego, más la desventaja es que el usuario tiene que regar las plantas manualmente.
- Se pueden crear diversas composiciones y alinear las macetas para que la descarga de las superiores sirva para regar las inferiores.
- Las plantas se integran bien con la cantera, las molduras se utilizan para agregar una textura natural en la vivienda y las plantas exacerban esa cualidad.
- Al regar, la cantera húmeda exuda un aroma a piedra mojada que estimula el olfato y remite a quien lo usa a una referencia natural, complementando así la experiencia natural del producto.



